Bienvenue,
Invité
. Merci de
vous connecter
ou de
vous inscrire
.
Avez-vous perdu votre
e-mail d'activation
?
03 février 2026, 06H 30mn 32s
Accueil
Forum
Aide
Rechercher
Partenaires
Connexion
Identifiant:
Mot de passe:
1 heure
1 jour
1 semaine
1 mois
Toujours
Bienvenue,
Invité
. Merci de
vous connecter
ou de
vous inscrire
.
Avez-vous perdu votre
e-mail d'activation
?
Rechercher
Coupe Sportwin
Retrouvez l'actualité du SporTwin sur
Participez au SporTwin avec Planète-Ducati
Forum Planete Ducati
»
Divers
»
L'atelier
»
Sujet:
Pompe à essence helpme
Imprimer
Pages: [
1
]
En bas
Auteur
Sujet: Pompe à essence helpme (Lu 1177 fois)
troxzy
Nouveau présenté
Messages: 8
Pompe à essence helpme
«
le:
19 juillet 2020, 11H 05mn 58s »
Bonjour bonjour 👋,
Je viens vers vous parce que je commence à désespérer sur une panne assez agaçante !
J’ai une DUCATI Monster 620 depuis 4ans avec peu de kilomètres 20 000km.
Je vous faits un petite historiques
J’ai eu une panne ou la moto ne voulais plus démarrer il y a 1 an. Aucun bruit de pompe à essence. Donc dépanneuse jusqu’à mon garagiste. De là il me dit que c’est la pompe à essences qui merde. Je lui demande de la changer. Je roule vite fait avec aucun soucis après je ne l’utilise plus « hivernage ».
Maintenant je re roule beaucoup et là re belote re panne ou la pompe à essence ne ce déclenche pas. J’ai de nouveau changer moi même la pompe à essence.
A savoir que la moto démarre sans problème, je peux rouler no stop 1 heure, 2 heures etc sans interruption et aucun soucis. Par contre dès que je m’arrête quelques minutes en coupant la moto, 20/30 min plus rien re belote plus de bruit de la pompe. Si je la laisse et revient le lendemain aucun soucis elle re démarre sans aucun problème..
J’ai vérifier aussi le faisceau électrique rien de ce côté là.
Si vous avez des idées je suis vraiment preneur,
Je vous remercie par avance
.
IP archivée
S4RS64
Desmodos
DESMO D'OR
Messages: 13 361
Re : Pompe à essence helpme
«
Réponse #1 le:
19 juillet 2020, 17H 08mn 31s »
Je sais pas, peut-être dis-je une grosse connerie: Y'a pas une histoire de mise a l'air libre du réservoir qui pourrait de boucher?
Vous avez 22 minutes pour me rigoler dessus
après je file a la pêche!
IP archivée
YAMAHA 350 RDLC 31K, 1983, 20 035 Km
KAWASAKI ZX750 TURBO, 1984, 40 040 Km
MOTO GUZZI 1100 SPORT CORSA, 1999, 36 382 Km
HONDA CBR1000F, 1993, 80 000Km
PEUGEOT 105R, 1981, 1000 Km.
TRIUMPH SPITFIRE MK3, 1970, 13 500 Km depuis remise à neuf en 96.
RENAULT SAFRANE 2L, 1999, 91 500 Km.
Ducati less.
Poua les motos Mangas Japonaises actuelles et les caisses actuelles lourdes et toutes ressemblantes
ducattof
Bicylindre en Argent
Messages: 2 372
ducati qui roule n'amasse pas rouille!
Re : Pompe à essence helpme
«
Réponse #2 le:
19 juillet 2020, 17H 10mn 16s »
as tu remplacer la jauge aussi, enfin plus l'endroit ou passe les fils ?
j'ai vue ce genre de panne sur un 620 et les fils n'étaient pas souder dans cette partie... j'ai creuser la résine et hop panne aléatoire un coup oui et un coup non... une soudure et hop ç'est repartit
IP archivée
ducati freine si bien que les moustiques s'écrasent dans le dos!!
Guillaume69
Team RNPD
DESMO D'OR
Messages: 10 600
Re : Pompe à essence helpme
«
Réponse #3 le:
19 juillet 2020, 18H 25mn 42s »
Le relais de pompe à essence?
IP archivée
900 SSD Darmah - 1980 - L’Enclume
900 SS #00054 - 1989 - La Dame de Fer
851 SP2 #173 - 1990 - Le Tracteur Pullman
916 SP3 #098 - 1996 - La Diva
796 Monster - 2011 - Le Jouet
troxzy
Nouveau présenté
Messages: 8
Re : Pompe à essence helpme
«
Réponse #4 le:
19 juillet 2020, 19H 03mn 06s »
Non je n ai pas encore replacer la jauge juste la pompe cylindrique qui ce clips.
Effectivement j’ai des doutes sur les câbles électriques entre intérieur/ extérieur.. Mais le bordel c’est couler dans l’epoxy ? Tu creuse la résine, tu répare et tu refait une résine ?
IP archivée
troxzy
Nouveau présenté
Messages: 8
Re : Pompe à essence helpme
«
Réponse #5 le:
19 juillet 2020, 19H 04mn 20s »
Le relais c’est quoi ?
IP archivée
sauval
Administrateur
DESMO D'OR
Messages: 46 175
fouetteur patenté qualifié de patron ou taulier
Re : Pompe à essence helpme
«
Réponse #6 le:
19 juillet 2020, 19H 19mn 14s »
C'est un endroit ou tu arrives avec des chevaux exténués, et tu repart avec des reposés
IP archivée
Ne pas voir diavel...boire Duvel, vivre avec une brune!
A la recherche de l'oiseau bleu sanglant, qui a bien voyagé.
Nove nove sei rosso, avec sa moelleuse symphonie de pièces en mouvement et bébé Mostro 600 carburé
Et ... hemmm la petite bestiole, un Duke 390! Tout fout le camp mon pôvre
Arff fallait bien que ça arrive ... :-)) et c'est arrivé! Un 690 a remplacé le 390!
Ex ceci, ex cela, ex tout court spécialiste en rien, con pétant partout
Guillaume69
Team RNPD
DESMO D'OR
Messages: 10 600
Re : Pompe à essence helpme
«
Réponse #7 le:
19 juillet 2020, 20H 52mn 36s »
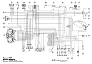
Il y a visiblement un relais d’injection sur le 620 ie. Le #46 sur le diagramme ci-dessous (avec un peu de bol, s’il est jaune fluo, il sera facile à trouver
). Ça peut venir de là, à tester, donc (en le remplaçant par un neuf pour voir).
J’ai eu cette panne sur ma 916 (relais pompe essence HS), et ça donnait une panne intermittente, avec la pompe qui s’arrêtait de fonctionner.
«
Modifié: 19 juillet 2020, 20H 54mn 48s par Guillaume69
»
IP archivée
900 SSD Darmah - 1980 - L’Enclume
900 SS #00054 - 1989 - La Dame de Fer
851 SP2 #173 - 1990 - Le Tracteur Pullman
916 SP3 #098 - 1996 - La Diva
796 Monster - 2011 - Le Jouet
troxzy
Nouveau présenté
Messages: 8
Re : Pompe à essence helpme
«
Réponse #8 le:
19 juillet 2020, 21H 30mn 36s »
Ah cool, je pensais pas que les relais pouvait faire chier. je vais test dans la semaine. Je vous tien au courant
merci
IP archivée
CriCri-d-amour
Cylindre en Bronze
Messages: 220
Ducati Monster S2R 800 - BMW R Nine T Scrambler
Re : Pompe à essence helpme
«
Réponse #9 le:
19 juillet 2020, 22H 11mn 55s »
Salut, J'ai ces deux relais sur le manuel d'atelier du S2R1000 (c'est peut être foutu de la même façon dur le 620 si ça peut t'aider) :
Est ce que le relais injecteur fais aussi relais pour la pompe à carburant ?
IP archivée
troxzy
Nouveau présenté
Messages: 8
Re : Pompe à essence helpme
«
Réponse #10 le:
19 juillet 2020, 22H 44mn 28s »
IP archivée
Imprimer
Pages: [
1
]
En haut
Forum Planete Ducati
»
Divers
»
L'atelier
»
Sujet:
Pompe à essence helpme